
L’objectif d’une installation sportive est d’être utile et utilisée, pour cela elle doit être bien équipée !
Afin de vous aider à composer la liste du matériel nécessaire pour équiper correctement vos installations sportives d’athlétisme, Dimasport a rédigé, avec la Fédération Française d’Athlétisme, une liste exhaustive, du matériel nécessaire pour bien équiper un stade en fonction du nombre de couloirs, du niveau d’utilisation en compétition, de l’enveloppe financière… Tous nos produits sont réglementaires et notre équipe d’experts est à votre disposition.



Le lancer de poids
Partenaire de tous les championnats nationaux et de nombreuses compétitions internationales, Dima propose des cages pour le lancer de poids en salle. Obligatoires, elles permettent de sécuriser les espaces.
I - Point de réglementation
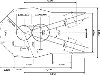
Plan type cage stade intérieur


| 10 - 11 (Poussin) | CM2 - 6ème | 2 kg (1) | 2 kg (1) |
| 12 - 13 (Benjamin) | 6ème - 5ème | 3 kg (1) | 2 kg (1) |
| 14 - 15 (Minime) | 4ème - 3ème | 4 kg | 3 kg (1) |
| 16 - 17 (Cadet) | 5 kg | 3 kg | |
| 18 - 19 (Junior) | 6 kg | 4 kg | |
| Espoir / senior / vétéran 1 | 7.260 kg | 4 kg |
(1) la longueur totale du marteau peut être réduite à 1 mètre
II - Aménagement d'une aire de lancer de poids

| Aire de lancer de poids en intérieur | |
| Ref 11400001 / 11400004 / 11400070 / 11400007 | Plateaux de lancer |
| Ref 11400002 / 11400006 | Les surfaces de réception |
| Ref 22350 | Chariot de transport pour surface de réception |
| Ref 1140009 / 1140003 | Les cages de lancer |
| Ref 11400010 | Protection mousse de la cage de lancer |
| Aire de lancer de poids extérieur | |
| Ref 11160 / 11161 | Les cercles de lancer |
| Ref 11222 / 11220 / 112221 | Les butoirs |
| Le petit matériel | |
| Ref 12221 | Râtelier rangement poids |
| Ref 12225 | Gouttière de retour poids |
| Ref 10980 | Plots de lancers courts |
| Ref 21110 / 2111 | Bac à magnésie |
| Ref 21110010 | Magnésie |
| Ref 11611 | Valise de mesure des engins |
| Ref 11631 | Balance de pesée |
| Ref 11020 | Bandes plastiques |
| Ref 11030 | Cavaliers de fixation |
| Ref 11040 | Enrouleur |
| Ref 10782 / 10781 | Panneau d’affichage |
| Ref 10440 | Fiches pour lancers courts |
Le lancer de disque et de marteau
I - Point de réglementation
L’aire de lancer de disque et de marteau peut être dans le même espace, le cercle de marteau étant plus petit, il suffit d’un réducteur de cercle DIMA pour rendre votre aire de lancer multifonction.
| Diamètre du cercle de lancer | |
| MARTEAU | 2M135 |
| DISQUE | 2M50 |
Le lancer de disque
Il existe deux types de cage, les cages à demeure à sceller au sol et les cages à usage ponctuel à poser au sol.


Le lancer de marteau
Pour le lancer de marteau il existe des cercles spécifiques ou alors des réducteurs de cercle qui permettent de rétrécir le cercle de lancer du disque pour l’adapter aux normes du lancer de marteau.




| AGE (indicatif) | CLASSE | HOMME | FEMME |
| 10 - 11 (Poussin) | CM2 - 6ème | 2 kg (1) | 2 kg (1) |
| 12 - 13 (Benjamin) | 6ème - 5ème | 3 kg (1) | 2 kg (1) |
| 14 - 15 (Minime) | 4ème - 3ème | 4 kg | 2 kg (1) |
| 16 - 17 (Cadet) | 5 kg | 3 kg | |
| 18 - 19 (Junior) | 6 kg | 4 kg | |
| Espoir / senior / vétéran 1 | 7.260 kg | 4 kg |
(1) la longueur totale du marteau peut être réduite à 1 mètre
| AGE (indicatif) | CLASSE | HOMME | FEMME |
| 10 - 11 (Poussin) | CM2 - 6ème | 800 g | 600 g |
| 12 - 13 (Benjamin) | 6ème - 5ème | 1 kg | 600 g |
| 14 - 15 (Minime) | 4ème - 3ème | 1.250 kg | 800 g |
| 16 - 17 (Cadet) | 1.5 kg | 1 kg | |
| 18 - 19 (Junior) | 1.750 kg | 1 kg | |
| Espoir / senior / vétéran 1 | 2 kg | 1 kg |
II - Aménagement d’une aire de lancer de disque et de marteau

LE LANCER DE disque
| Ref 13278 | Les cages à sceller |
| Ref 13270 / 13277 | Les cages à poser |
| Ref 11200 / 11201 | Les cercles de lancer |
LE LANCER DE marteau
| Ref 13288 / 13289 | Les cages à sceller |
| Ref 11200 / 11201 | Les cercles de lancer disque |
| Ref 11190 | Réducteur de cercle |
| Ref 13339 | Bande de roulement |
| Ref 12213 | Râtelier rangement disques |
| Ref 13360 | Filet anti-rebonds |
| Ref 11000 | Plots de lancers longs |
| Ref 21110 / 2111 | Bac à magnésie |
| Ref 21110010 | Magnésie |
| Ref 11611 | Valise de mesure des engins |
| Ref 11631 | Balance de pesée |
| Ref 11020 | Bandes plastiques |
| Ref 11030 | Cavaliers de fixation |
| Ref 11040 | Enrouleur |
| Ref 10782 / 10781 | Panneau d’affichage |
| Ref 10460 | Fiches pour lancers longs |
| Ref 12213 | Râtelier rangement disques |
| Ref 11000 | Plots de lancers longs |
| Ref 21110 / 2111 | Bac à magnésie |
| Ref 21110010 | Magnésie |
| Ref 11611 | Valise de mesure des engins |
| Ref 11631 | Balance de pesée |
| Ref 11020 | Bandes plastiques |
| Ref 11030 | Cavaliers de fixation |
| Ref 11040 | Enrouleur |
| Ref 10782 / 10781 | Panneau d’affichage |
| Ref 10460 | Fiches pour lancers longs |





